25 фото
14 990 000 руб.
Общая информация
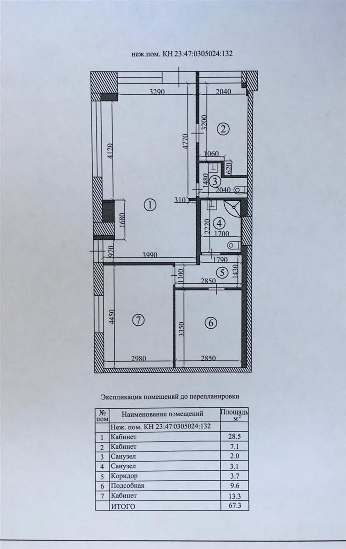
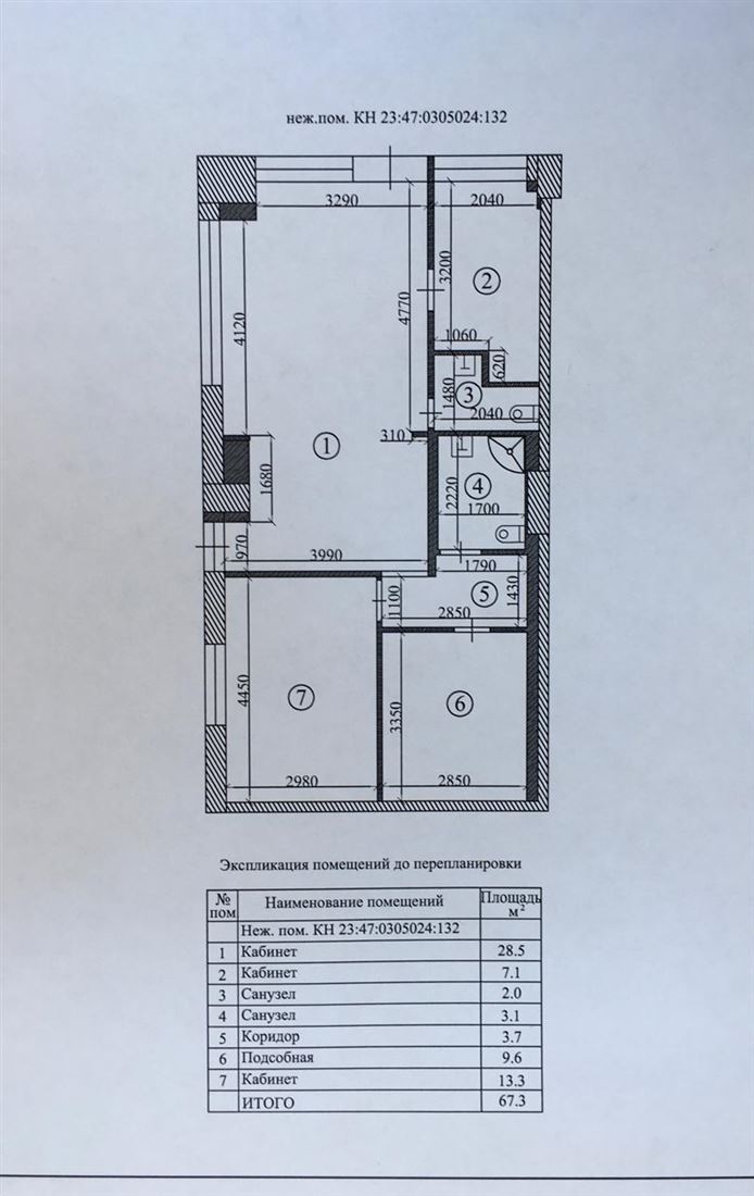
ID в ИМЛС: 11204219 Продаётся нежилое офисное помещение в г. Новороссийске, ул.Энгельса,73/75, площадью 67,3 кв.м., на 1 этаже, два входа, большой зал при входе, два отдельных кабинета, кухонная комната с кухонной мебелью и электрической плитой, закрывающееся пластиковыми панелями мини-кухонное место, два санузла, душевая кабина, две сплит-системы, три больших витражных металло-профильных окна с закрывающимися электрическими ролетами, телефон, интернет. Отдельный ввод электроэнергии по договору с НЭСКом. Имеются две запасных емкости воды на на 400 литров, система подогрева воды с водонагревателем. Подвесные потолки "Армстронг", высота потолков 4.2 метра. Офисная мебель (столы и стулья, шкаф и тумбочка, большой зеркальный встроенный шкаф-купе) и бытовой техникой (два телевизора, холодильник и мини-холодильник, микроволновая печь) В помешении удобные встроенные и навесные стелажи. Над главным входом в помещение большое место для размещения рекламных вывесок.
Помещение находится на первой линии одной из главных магистральных центральных улиц города, недалеко остановки общественного транспорта. Имеется два благоустроенных места для парковки автотранспорта. Помещение можно использовать для размещения офиса, представительства, агентства и т.д. Собственник.
На сайте поиска недвижимости DOMEX представлены объявления от собственников, агентств недвижимости, застройщиков и риэлторов. У нас Вы можете сравнить все цены и подобрать нужный Вам вариант.
Помещение находится на первой линии одной из главных магистральных центральных улиц города, недалеко остановки общественного транспорта. Имеется два благоустроенных места для парковки автотранспорта. Помещение можно использовать для размещения офиса, представительства, агентства и т.д. Собственник.
На сайте поиска недвижимости DOMEX представлены объявления от собственников, агентств недвижимости, застройщиков и риэлторов. У нас Вы можете сравнить все цены и подобрать нужный Вам вариант.
Характеристики
| Цена | 14 990 000 руб. |
|---|---|
| Площадь | 67.3 кв.м. |
| Адрес | ул Энгельса, д. 73/75 |