5 фото
284 992 000 руб.
Общая информация
Продается через электронные торги на площадке ЭТП ГПБ имущественный комплекс недвижимого и движимого имущества база отдыха «Магистраль», расположенный по адресу: Краснодарский край, Туапсинский район, с. Агой.
ФУНКЦИОНИРУЕТ С 1997 года
В СОСТАВЕ 9 объектов недвижимости, детская, спортивные площадки
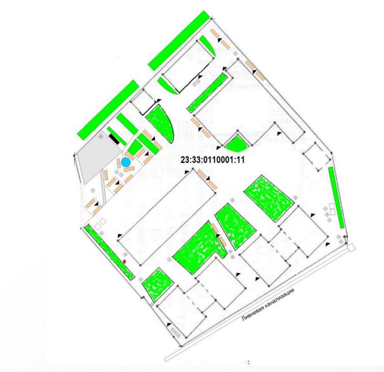
ТЕРРИТОРИЯ 8 231 кв.м. (ж/б забор, металлический решетчатый забор высотой 2 м, металлические автоматические ворота, твердое покрытие, частичное озеленение)
БЕЗОПАСНОСТЬ: тревожная сигнализация, центральный пункт автоматической пожарной сигнализации, система пожарного мониторинга, система видеонаблюдения НОМЕРНОЙ ФОНД: 73 номера 1 категории (37 трехместных и 36 двухместных номеров)
МАКСИМАЛЬНАЯ ВМЕСТИМОСТЬ: 183 человека
ИНФРАСТУРКТУРА: 128 км от аэропорта «Геленджик», 155 км от аэропорта «Краснодар», 153 км от аэропорта «Сочи», остановки общественного транспорта в 1,72 км (остановка «Агой»), в 2,06 км (остановка «Аэропорт»)
ОБЪЕКТЫ НЕДВИЖИМОСТИ НА ТЕРРИТОРИИ
БАЗЫ ОТДЫХА
1. Спортивно-оздоровительный корпус Берлин
2. Нежилое здание, Корпус 4
3. Нежилое здание, Спальный корпус, Корпус 3
4. Нежилое здание, Корпус 2
5. Нежилое здание, Спальный корпус 1
6. Столовая
7. Материально-технический склад
8. Вагон-домик (Проходная)
9. Дом обслуживающего персонала (АБК)
Объекты расположены на арендуемом у Департамента имущественных отношений Краснодарского края земельном участке с кадастровым номером 23:33:0110001:11, площадью 8 231 кв.м., с видом разрешенного использования «Эксплуатация базы отдыха», категорией земель – «Земли населенных пунктов».
Водоснабжение/водоотведение: база отдыха подключена к централизованным сетям водоснабжения (лимит 6 000 куб.м. в год) и водоотведения. Оформлены договоры оказания услуг с ресурсоснабжающими организациями и определены зоны эксплуатационной ответственности, установлены счетчики.
Газоснабжение: отсутствует, для подогрева воды и отопления используются 7 электрических котлов.
Электроснабжение: осуществляется от ТПА-257 киоскового типа в составе силового трансформатора ТМГ-400/10, РУ-10 кВ, РУ-0,4кВ. Присоединенная мощность 400кВт, разрешенная мощность 290 кВт.
Внешнее электроснабжение осуществляется по одной ВЛ 10кВ от ТП-Н402 через ВН-Н402 с возможностью кольцевания от ТП- Н151 через ВН-Н151. Резервные источники питания отсутствуют. Среднее потребление 400 000 кВтч в год.
Вывоз ТБО: централизованно уполномоченным оператором на основании заключенного договора.
Доступ отдыхающих осуществляется на центральный галечный муниципальный пляж, протяженностью 400 метров. Вход на пляж бесплатный и открыт круглые сутки. Спуск в воду пологий, глубина нарастает постепенно, нет крупных камней. Пляжная полоса имеет длину в 1 км и ширину 20-30 метров. Дно моря у побережья ровное, без выступов и больших камней. Волнорез, проходящий неподалеку защищает пляжную линию от сильных волн. Черное море прогревается для купания к началу июня. Купальный сезон длится до начала октября.
На сайте поиска недвижимости DOMEX представлены объявления от собственников, агентств недвижимости, застройщиков и риэлторов. У нас Вы можете сравнить все цены и подобрать нужный Вам вариант.
ФУНКЦИОНИРУЕТ С 1997 года
В СОСТАВЕ 9 объектов недвижимости, детская, спортивные площадки
ТЕРРИТОРИЯ 8 231 кв.м. (ж/б забор, металлический решетчатый забор высотой 2 м, металлические автоматические ворота, твердое покрытие, частичное озеленение)
БЕЗОПАСНОСТЬ: тревожная сигнализация, центральный пункт автоматической пожарной сигнализации, система пожарного мониторинга, система видеонаблюдения НОМЕРНОЙ ФОНД: 73 номера 1 категории (37 трехместных и 36 двухместных номеров)
МАКСИМАЛЬНАЯ ВМЕСТИМОСТЬ: 183 человека
ИНФРАСТУРКТУРА: 128 км от аэропорта «Геленджик», 155 км от аэропорта «Краснодар», 153 км от аэропорта «Сочи», остановки общественного транспорта в 1,72 км (остановка «Агой»), в 2,06 км (остановка «Аэропорт»)
ОБЪЕКТЫ НЕДВИЖИМОСТИ НА ТЕРРИТОРИИ
БАЗЫ ОТДЫХА
1. Спортивно-оздоровительный корпус Берлин
2. Нежилое здание, Корпус 4
3. Нежилое здание, Спальный корпус, Корпус 3
4. Нежилое здание, Корпус 2
5. Нежилое здание, Спальный корпус 1
6. Столовая
7. Материально-технический склад
8. Вагон-домик (Проходная)
9. Дом обслуживающего персонала (АБК)
Объекты расположены на арендуемом у Департамента имущественных отношений Краснодарского края земельном участке с кадастровым номером 23:33:0110001:11, площадью 8 231 кв.м., с видом разрешенного использования «Эксплуатация базы отдыха», категорией земель – «Земли населенных пунктов».
Водоснабжение/водоотведение: база отдыха подключена к централизованным сетям водоснабжения (лимит 6 000 куб.м. в год) и водоотведения. Оформлены договоры оказания услуг с ресурсоснабжающими организациями и определены зоны эксплуатационной ответственности, установлены счетчики.
Газоснабжение: отсутствует, для подогрева воды и отопления используются 7 электрических котлов.
Электроснабжение: осуществляется от ТПА-257 киоскового типа в составе силового трансформатора ТМГ-400/10, РУ-10 кВ, РУ-0,4кВ. Присоединенная мощность 400кВт, разрешенная мощность 290 кВт.
Внешнее электроснабжение осуществляется по одной ВЛ 10кВ от ТП-Н402 через ВН-Н402 с возможностью кольцевания от ТП- Н151 через ВН-Н151. Резервные источники питания отсутствуют. Среднее потребление 400 000 кВтч в год.
Вывоз ТБО: централизованно уполномоченным оператором на основании заключенного договора.
Доступ отдыхающих осуществляется на центральный галечный муниципальный пляж, протяженностью 400 метров. Вход на пляж бесплатный и открыт круглые сутки. Спуск в воду пологий, глубина нарастает постепенно, нет крупных камней. Пляжная полоса имеет длину в 1 км и ширину 20-30 метров. Дно моря у побережья ровное, без выступов и больших камней. Волнорез, проходящий неподалеку защищает пляжную линию от сильных волн. Черное море прогревается для купания к началу июня. Купальный сезон длится до начала октября.
На сайте поиска недвижимости DOMEX представлены объявления от собственников, агентств недвижимости, застройщиков и риэлторов. У нас Вы можете сравнить все цены и подобрать нужный Вам вариант.
Характеристики
| Цена | 284 992 000 руб. |
|---|---|
| Площадь | 8231 кв.м. |